우리집, 우리가게 인테리어 공사를 맡겼는데 어떻게 만들어지는지 잘 만들어지는건지
어찌 확인해야할까요?
겉보기엔 좋아보여도 그 속에 어떻게 만들어졌는지에 따라서 하자가 발생할수도 있고
내구성이 약해서 1년만에 망가질수도 있고 그렇죠
궁금하시면 찾아보셔야죠 ㅎㅎㅎ
인테리어 디테일 자료들이 아주 상세하게...
전문적으로 인테리어 하시는 분들은 그냥 그림만 가지고 공사하지않습니다.
도면이라는걸 그리죠 아주 상세하게...
그런 자료들을 볼수있는 곳이 있습니다.
인테리어 전문 커뮤니티 사이트 - 인테리스입니다.
전문가분이 직접 올려준 자료들을 누구나 쉽게 검색해서 볼수 있습니다.
인테리어 전문가들이 직접 그리고 작성한 다양한 상세도,디테일을 볼수 있는 곳 바로 인테리스입니다.
아파트, 상가, 카페에서 가장 많이 쓰는 자료들 몇가지 보여드리겠습니다.
바닥에 들어가는 재료분리대 도면
다른 재료가 서로 바닥에서 만날때 아래 그림처럼 재료분리대라는걸 설치합니다.
마감자재의 종류도 다양한 만큼 두께도 다르고 재질도 다르기 때문에 그걸 깔끔하게 정리하기 위해 설치하는
가장 흔하게 사용하는 방식입니다.
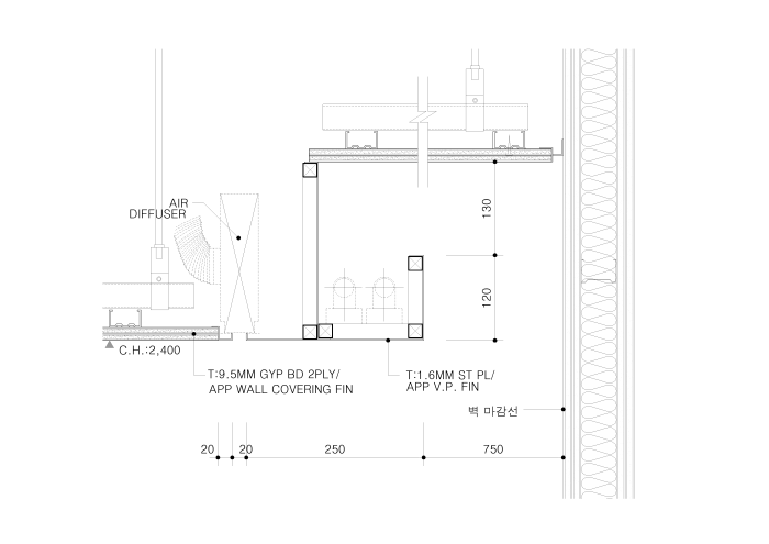
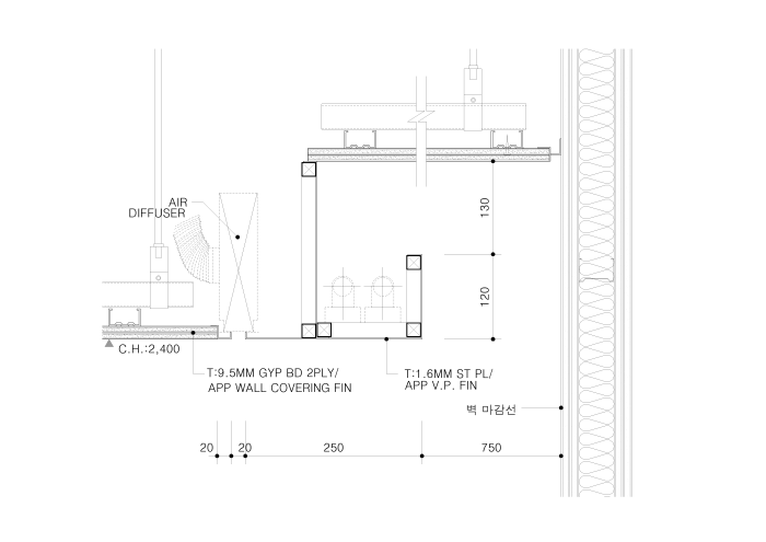
시공방법과 재료는 너무나 많지만 아래는 그중에 하나입니다.


가장 흔하게 볼수있는 벽체 상세도 경량스터드와 석고보드가 어떻게 붙어있는지 볼수있습니다.

아파트나 상가 카페 등등 거의 모든곳에 항상 쓰이는 간접등박스입니다.
아래는 목구조로 작업한 도면입니다.

간접등박스도 모양은 비슷하지만 어떤 자재를 사용하느냐에 따라 또 마감자재가 어떤거냐에 따라
상세도가 완전히 달라지기도합니다. 기본적인 형태는 비슷하지만
전문가분들에게 항상 고민해야하는 상세도입니다.

아래는 커튼박스 상세도 목구조틀로 작업한 사진입니다.
아파트나 주택에서 가장 흔하게 볼수있는 상세도입니다.

문-양개문 상세도입니다. 요즘은 기성제품을 많이 사용하기때문에 디테일없이 그냥 시공하지만
조금 고급스럽게 들어가는 아파트나 주택에는 아래 사진처럼 문제작도를 그립니다.
작은 부위까지 아주 상세하게 치수숫자가 표현되어있지요?
그래야만 목수분들이 아주 꼼꼼하게 실수없이 잘 만들어주십니다.

화장실 세면대 상세도네요
가장 흔하게 볼수있는 하부 금속구조틀 위에 인조대리석 상판마감한 도면자료입니다.

다음은 마지막으로 가도면입니다.
가구는 보통 길이만 이야기하면 다들 만들어주시지만 현장에서 직접 제작하시는 분들은 이렇게 아주 상세하게 도면을 그립니다.
판재와 판재가 어떻게 연결되고 고정되는지 보강목은 어디에 어떻게 설치하는지 등등
손잡이는 어떤 형태를 설치할건지 등등

어느 하나 쉽게 되는게 없습니다.
의뢰하시는 분들은 쉽게 가구 만들어주세요 세면대 만들어주세요 하지만
전문가분들은 이렇게 안보이는곳에서 도면으로 사전점검을 하게됩니다.
도면에서 문제점이 생기면 또 새로운 방법으로 시공가능한 디테일을 고민해야하구요
이렇게 다양한 상황에서 다양한 자재들을 활용한 수많은 시공방법들이 있습니다.
궁금하신가요?ㅎㅎㅎ
인테리스에 오시면 볼수있습니다.
인테리어 전문가들이 모여서 떠들며 놀고 공부하고 배우는 곳 인테리어 전문 커뮤니티 사이트 인테리스입니다.

'I-Story > 잡담' 카테고리의 다른 글
| 인테리어 어디까지 알아봤니? (0) | 2020.05.04 |
|---|---|
| 인테리어 신입 초봉 연봉 정보 (0) | 2020.05.02 |
| 셀프/ 반셀프인테리어 기술자 구하기 (0) | 2020.04.14 |
| 인테리어의 분류 (0) | 2016.04.06 |
| 주거비용 중 감가상각비 (0) | 2015.11.07 |